Parcela única en el sur de Tenerife
Le ofrecemos una inversión excepcional, una ubicación inmejorable y la…
9,000,000.00€
Precio
1,650,000.00€
Nos complace ofrecerle una villa de nueva construcción en estilo brutalista.
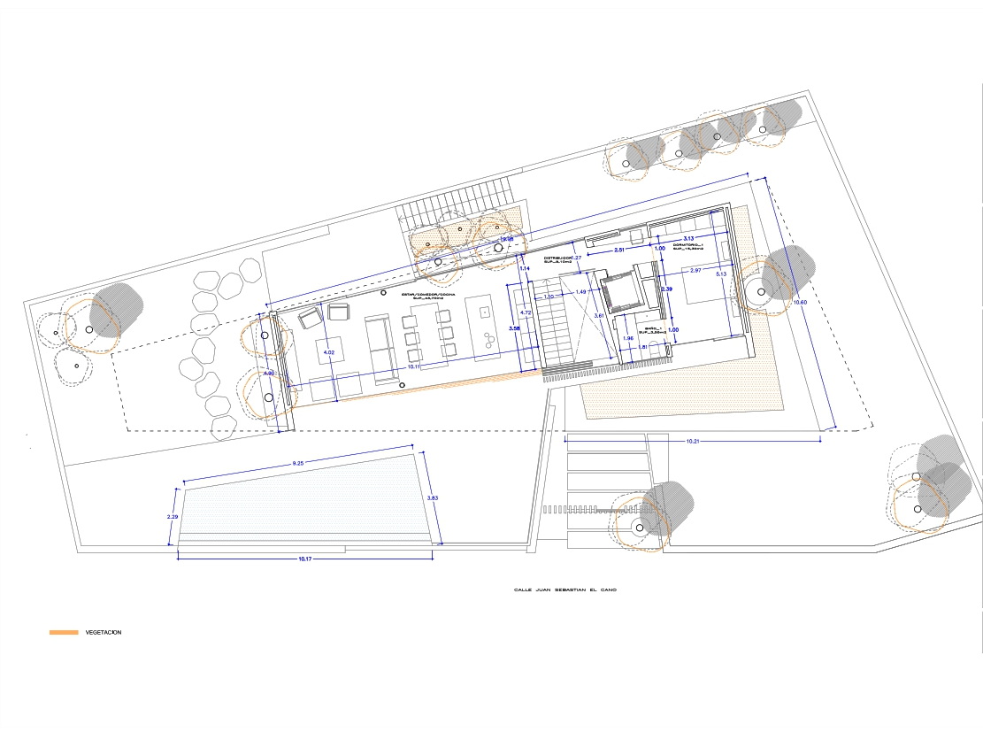
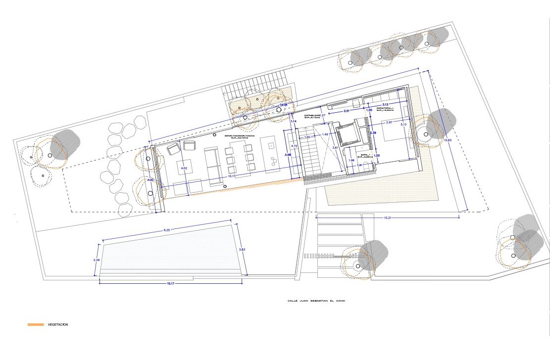
Esta moderna villa, con una superficie habitable de 240 m², se distribuye en tres plantas y se asienta sobre una parcela de 600 m² con espectaculares vistas al mar. La vivienda es una solución inteligente para el clima de Tenerife, con especial atención a la eficiencia energética y el confort. Los grandes ventanales orientados al suroeste garantizan un óptimo aprovechamiento de la luz solar y vistas panorámicas, mientras que la instalación de parasoles protege del calor excesivo durante los meses más cálidos.
La villa cuenta con 3 dormitorios, 3 baños, una amplia cocina moderna, un salón-comedor diáfano. El diseño de alta calidad y los acabados refinados le confieren una apariencia exclusiva.
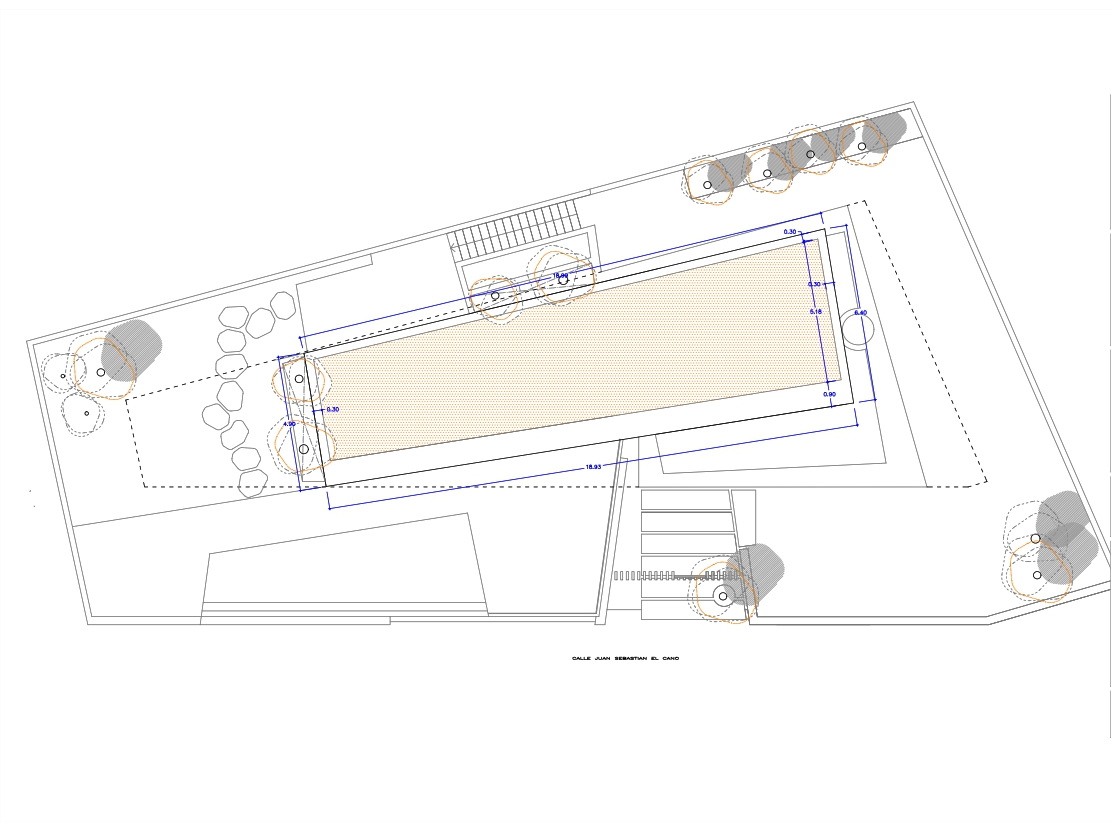
En el exterior, la villa ofrece un patio con encanto, amplias terrazas y una piscina infinita climatizada con impresionantes vistas panorámicas al mar. Además, la propiedad está equipada con aire acondicionado en todas las estancias, lavandería y un espacioso garaje de 60 m². La villa se encuentra cerca de la playa, y desde aquí se puede llegar al centro de Santa Cruz en 20 minutos en coche y a la playa de Las Teresitas en 30 minutos.
Radazul es un pequeño pueblo situado al este de la isla de Tenerife, a una altitud media de 128 m sobre el nivel del mar y a unos 25 minutos del aeropuerto de Tenerife Norte. La entrega está prevista para marzo/abril de 2026.
Para más información o para concertar una visita, no dude en contactarnos sin compromiso.
Le ofrecemos una inversión excepcional, una ubicación inmejorable y la…
9,000,000.00€
Última parcela edificable disponible en la prestigiosa zona residencial de…
2,650,000.00€
Financiado por la Unión Europea con el Programa Kit Digital por los Fondos Next Generation (EU) del Mecanismo de Recuperación y Resiliencia
Poseer una casa es la piedra angular de la riqueza... tanto la riqueza financiera como la seguridad emocional.
Suze Orman